AKTIONSHÄUSER

WALLY 110 um € 299.900,-*

WALLY 130 um € 299.900,-*

JETZT WIRD HAUS BAUEN WIEDER LEISTBAR

In Kooperation mit max-Bausysteme GmbH präsentiert die ETZI-Group gemeinsam mit WALLMENT-Ziegelfertigwände eine echte Sensation auf dem Hausbaumarkt: Die neuen WALLY-SYSTEMHÄUSER!

Moderne Haustypen, die von Anfang bis Ende durchdacht sind: architektonisch clever geplant, effizient gebaut und bezugsfertig um nur € 299.900,-*!

WALLY 130 Flachdach

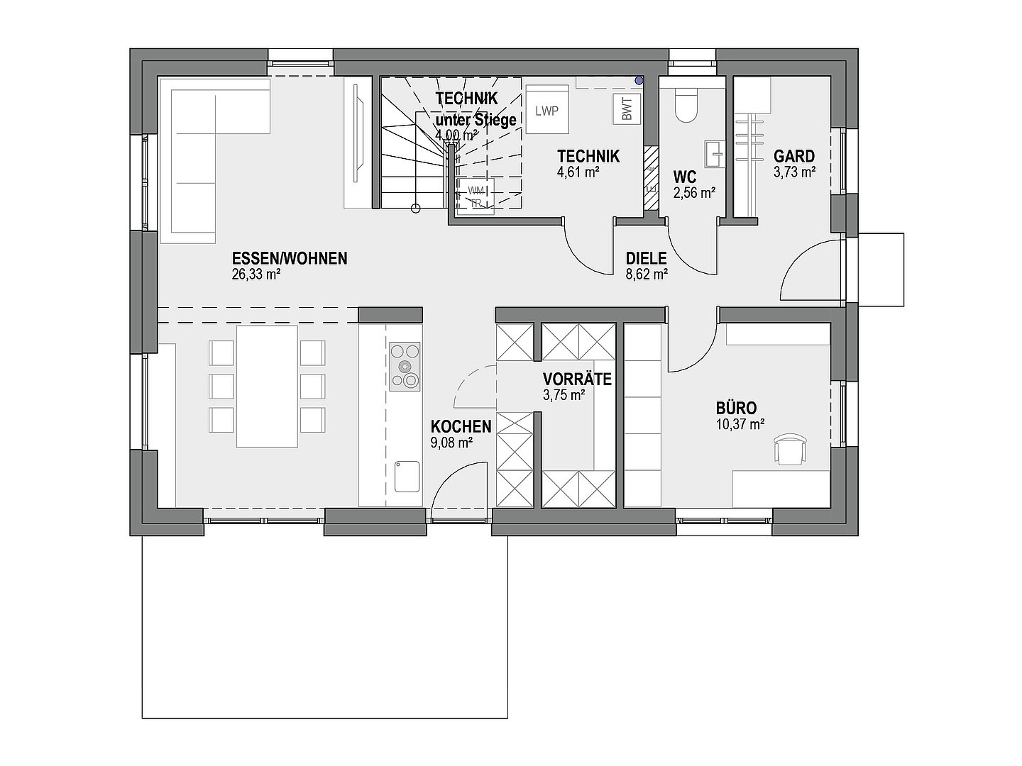
WALLY 130

  • großer, offener Wohn-Ess-Koch-Bereich
  • Multifunktionsraum im Erdgeschoß
  • 2 große Kinderzimmer
  • Schlafzimmer mit separater Ankleide
  • Walmdach optional gegen Aufpreis
  • bezugsfertig um € 299.900,-*

*Ausstattung lt. Leistungsbeschreibung Flachdach, Grundrisse sind nicht abänderbar; Systemhaus bezugsfertig. Gültig bis 30. April 2026 und in einem Radius von 50 km (darüberhinaus gibt es Entfernungszuschläge). 

BEI UNS BEKOMMST DU MEHR FÜR DEIN GELD!

Unsere Systemhäuser überzeugen durch ein durchdachtes und erprobtes Konzept. Individuelle Anpassungen wie Änderungen an Fenstergrößen, Installationen oder dem Grundriss sind daher nicht möglich. Ein unschlagbares Angebot, das wir gemeinsam – gerade in herausfordernden Zeiten mit steigenden Baukosten, Zinsen und strengen Auflagen wie der KIM-Verordnung – möglich gemacht haben.

Denn, wir sind überzeugt: „Wohnen muss wieder leistbar werden!“ Daher haben wir gemeinsam mit unseren langjährigen Partnern und Lieferanten ein Paket geschnürt: Zusammen entwickelten wir ein besonderes Hauskonzept, das Design, Qualität und Kostenbewusstsein perfekt vereint. Für alle, die sich den Traum vom eigenen Zuhause erfüllen möchten.

WALLY 110 Walmdach

WALLY 110

  • großer, offener Wohn-Ess-Koch-Bereich
  • Schlafzimmer inkl. Ankleide
  • 2 große Kinderzimmer
  • Barrierefrei anpassbar
  • Walmdach optional gegen Aufpreis
  • bezugsfertig um € 299.900,-* 

* Ausstattung lt. Leistungsübersicht WALLY, Aktionspreis bei bezugsfertiger Ausführung gültig bis 15. Dezember 2025

DOPPELT GUT. DOPPELT LEISTBAR.

Mehr Platz für zwei Familien, zwei Generationen oder einfach doppelt so viel Lebensfreude.
Mit den WALLY-Doppelhäusern wird gemeinsames Wohnen endlich wieder leistbar.

WALLY 128 Flachdach
DOPPELHAUS

WALLY 128

  • großer, offener Wohn-Ess-Koch-Bereich
  • Büro oder Gästezimmer im EG
  • 2 große Kinderzimmer
  • Walmdach optional gegen Aufpreis
  • bezugsfertig um € 299.900,-* 

* Ausstattung lt. Leistungsübersicht WALLY, Aktionspreis bei bezugsfertiger Ausführung gültig bis 15. Dezember 2025

WALLY 134 Flachdach
DOPPELHAUS

WALLY 134

  • großer, offener Wohn-Ess-Koch-Bereich
  • Büro oder Gästezimmer im EG
  • Schlafzimmer mit separater Ankleide
  • 2 große Kinderzimmer
  • Multifunktionsraum im OG
  • Walmdach optional gegen Aufpreis
  • bezugsfertig um € 309.900,-* 

* Ausstattung lt. Leistungsübersicht WALLY, Aktionspreis bei bezugsfertiger Ausführung gültig bis 15. Dezember 2025

Nicht nur doppelt gut: Jetzt wird auch DREIFACH-und VIERFACH-WOHNEN leistbar!

Unsere WALLY-Wohnbauten für drei oder vier Familien verbinden modernes Design, effiziente Bauweise und faire Preise.

WALLY 3er-Einheit
WOHNBAU

WALLY 3er-Einheit

  • großer, offener Wohn-Ess-Koch-Bereich
  • 1 Schlafzimmer
  • 2 große Kinderzimmer
  • großzügige Terrasse
  • Walmdach optional gegen Aufpreis
  • Preis auf Anfrage

* Ausstattung lt. Leistungsübersicht WALLY, Aktionspreis bei bezugsfertiger Ausführung gültig bis 15. Dezember 2025

WALLY 4er-Einheit
WOHNBAU

WALLY 4er-Einheit

  • großer, offener Wohn-Ess-Koch-Bereich
  • 2 Kinder- und 1 Schlafzimmer
  • großzügige/r Terrasse/Balkon
  • Walmdach/Satteldach optional gegen Aufpreis
  • Preis auf Anfrage

* Ausstattung lt. Leistungsübersicht WALLY, Aktionspreis bei bezugsfertiger Ausführung gültig bis 15. Dezember 2025

*Ausstattung lt. Leistungsbeschreibung Flachdach, Grundrisse sind nicht abänderbar;
Aktionshaus bezugsfertig, gültig bis 15. Dezember 2025 und einem Radius von 50 km
(darüberhinaus gibt es einen Entfernungszuschlag)

DU WILLST MEHR ÜBER UNSERE AKTION ERFAHREN?

Vereinbare noch heute dein unverbindliches Beratungsgespräch mit unserem Beratungsteam.

Typenhaus St. Pölten 135
JETZT WEITERSTÖBERN

Noch nicht das passende Haus gefunden?

 

Dann entdecke hier weitere durchdachte Typenhäuser und lass dich inspirieren.