Snowlodge Gleinkersee – Bezirk Kirchdorf/Krems

RĂŒckzugsort im stilvollen Chalet-Design

Wohnen am Gleinkersee

Erleben Sie exklusives Wohnen inmitten der oberösterreichischen Bergwelt! In traumhafter Lage entstehen acht hochwertige Chalets, die sowohl als Haupt- als auch Nebenwohnsitz genutzt werden können. Jede Einheit verfügt über eine eigene Terrasse und GartenflĂ€che mit spektakulĂ€rem Panoramablick. Durch innovative Architektur und flexible Grundrisse (wahlweise mit zwei, drei oder vier Zimmern) entsteht Ihr ganz persönlicher Rückzugsort im stilvollen Chalet-Design.

 

Projektbeschreibung:

  • 8 hochwertige Chalets
  • GesamtflĂ€chen: ab 87,57 mÂČ
  • Baustart: voraussichtlich FrĂŒhjahr 2026

Details und Besonderheiten

Highlights:

  • Durchdachte, flĂ€chenoptimierte Grundrisse
  • Hochwertige, nachhaltige Bauweise mit natĂŒrlichen Materialien und regionalen Rohstoffen

QualitÀt & Architektur:

  • Lichtdurchflutete RĂ€ume und moderne Elemente schaffen einen stilvollen RĂŒckzugsort.
  • Realisiert von drei erfahrenen Immobilienentwicklern, steht das Projekt fĂŒr höchste QualitĂ€tsstandards.

Lage

Dank der einzigartigen Lage zwischen dem Naturjuwel Gleinkersee und den renommierten Skigebieten Wurzeralm und Hinterstoder profitieren Sie ganzjĂ€hrig von abwechslungsreichen Freizeitmöglichkeiten – und das nur 60 Autominuten von Linz bzw. 90 Autominuten von Graz entfernt.


Entfernungen:

  • Windischgarsten: ca. 5 km
  • Spital am Pyhrn: ca. 5,6 km
  • Gleinkersee: ca. 1,4 km
  • Autobahnanschluss A9: ca. 3 km

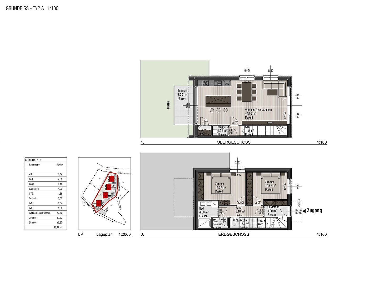
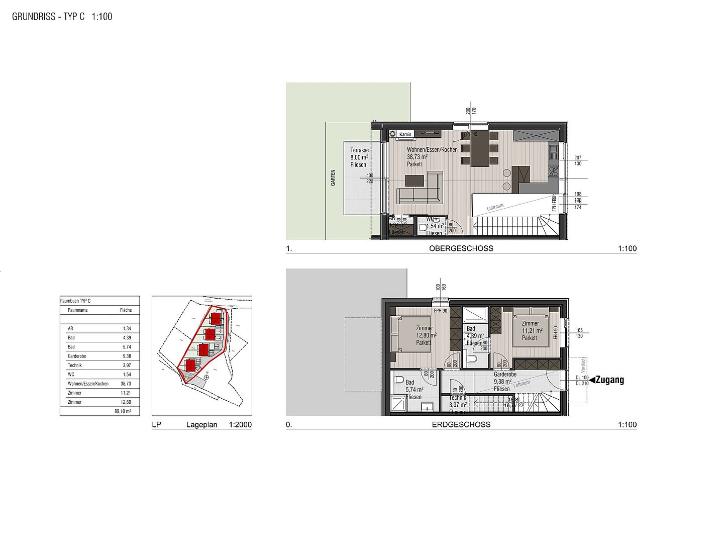
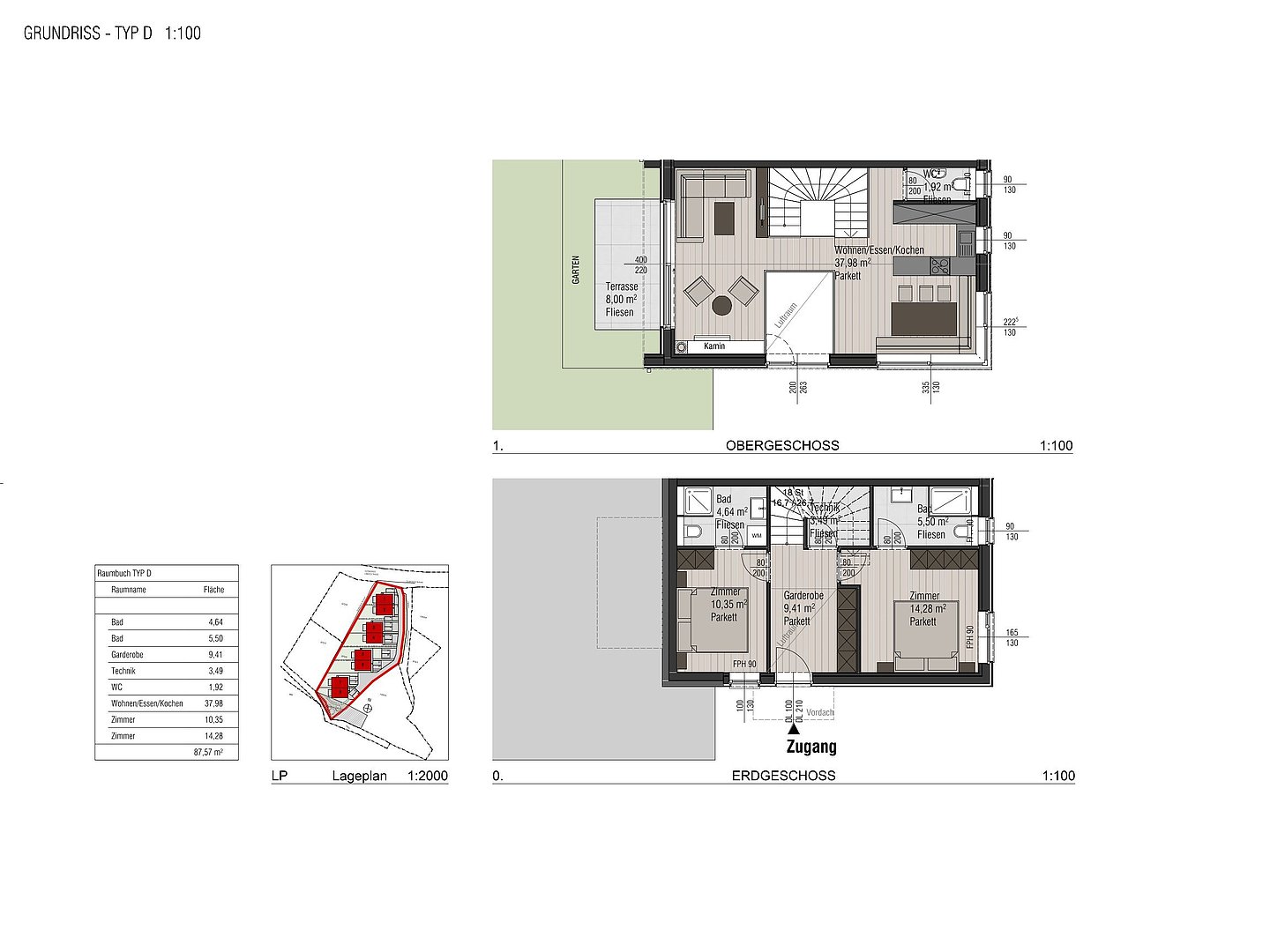
Grundrisse

KONTAKT

Carina Öttl

Tel.: +43 664 173 33 81
E-Mail: oettl@remax-joy.at
www.snowlodge-gleinkersee.at

JETZT BROSCHÜRE DOWNLOADEN

Ihr Haus mit Grund

Termin vereinbaren

Alle Angaben ohne GewÀhr. Druckfehler und PreisÀnderungen vorbehalten.

Projekt-Anfrage

Jetzt anfragen

Anrede *
PLZ * / Ort *
Newsletter *

Mit * markierte Felder sind Pflichtfelder!